お問合せ・資料請求 アクセス

パーティ・会議

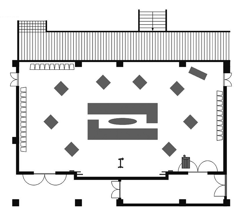
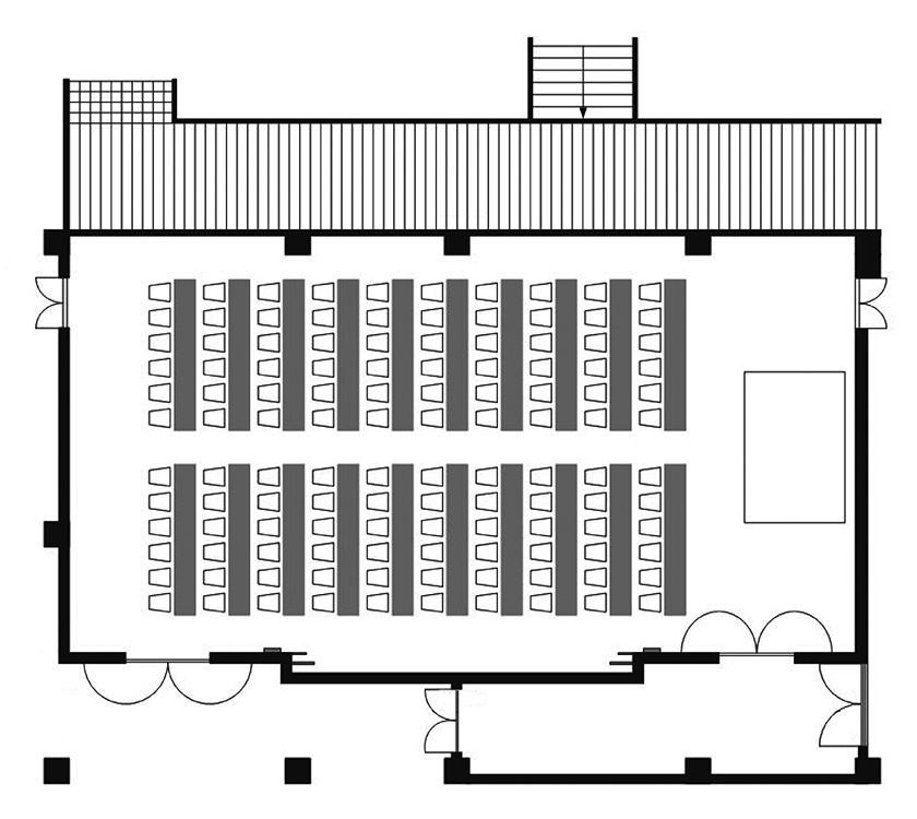
若竹の間

AIOI

1st FLOOR
191㎡ <58坪>
館内見取図
全部屋Wi-Fi対応
桃山時代狩野派の古典技法を踏襲した若竹、青竹、老竹で
四季の移ろいを表現した和モダンのバンケットです。
スケルトン展開図
室名 フロア 面積 収客人員
寸法(m) 正餐 ブッフェ スクール シアター
若竹の間 1F 190 57 9.4×18.7×2.6〜3.1 90 90 120 160
横にスライドさせてご覧ください
主な設備
調光装置 / ワイヤレスマイク / 美術バトン / スポットライト / CDプレーヤー / MDプレーヤー / コンセント(100v1回路15A) / マイク端子 / 有線LAN / Wi-Fi

お電話でのお問合せ

tel. 03-3746-7711

営業部法人営業課 9:30~19:00

お問合せ・資料請求

個人でのご宴会・お祝等を
お考えの方

お問合せ・資料請求

会社・企業・団体様での
ご利用をお考えの方

打合せの流れ お迎えバスのご案内 提携宿泊プラン 贈答用お菓子
明治記念館

〒107-8507 東京都港区元赤坂2-2-23